Search

Leave a Message

Thank you for your message. I will be in touch with you shortly.

Explore Our Properties

Property Description

Discover the epitome of Colorado living in this beautiful riverfront property. Nestled along the scenic banks of the Big Thompson River, this idyllic River Retreat offers the perfect blend of natural beauty and modern convenience. Situated on a generous lot, this recently upgraded home provides a unique opportunity for those seeking a tranquil riverside escape, with endless outdoor activities and relaxation possibilities. Step outside your door and find yourself immersed in the serene ambiance of the Big Thompson River. Whether you're an angler, a nature enthusiast, or simply someone who appreciates the soothing sounds of flowing water, this location will capture your heart. This home has been meticulously maintained and thoughtfully updated, ensuring a comfortable and modern living experience. It features a cozy fireplace for chilly mountain evenings, Beautiful hardwood floors, and a kitchen that seamlessly blends modern elegance with rustic charm. Don't miss the chance to own this riverfront haven with recent upgrades that perfectly balance modern living and the great outdoors. Whether you seek a full-time residence or a vacation retreat, this property offers you the lifestyle you've been dreaming of. Just a 12-minute drive to Estes Park and 30 minutes from Loveland. Schedule a showing and experience the magic of this unique property for yourself.

Overview

Property Status
Sold
Lot Size
1.18 Acres
MLS ID
1001868
Property Type
Residential
Year Built
1966

Features & Amenities

Architecture Styles
Cottage
View Description
Hills, Water
Stories
1
Water Source
Well
Utilites
Electricity Available, Propane, Satellite Avail, High Speed Avail
Roof
Composition
Lot Features
Wooded, Evergreen Trees, Deciduous Trees, Native Grass, Level, Rock Outcropping, Abuts Stream/Creek/River, Abuts National Forest, Meadow, House Faces South, River, River Front
Parking
RV Access/Parking
Heat Type
Hot Water, Baseboard, Wood Stove
Air Conditioning
Ceiling Fan(s)
Fireplace
Insert, Two or More, Living Room, Kitchen
Appliances
Electric Range, Dishwasher, Refrigerator, Washer, Dryer, Microwave, Gas Bar-B-Q, Water Purifier Owned, Disposal, Fire Alarm
Other Interior Features
Eat-in Kitchen, Separate Dining Room, Pantry, Wood Windows, Natural Woodwork, Washer/Dryer Hookup, Kitchen Island
Sewer
Septic Tank
Disability Features
Level Lot, Level Drive, No Stairs, Main Floor Bath, Main Level Bedroom, Stall Shower, Main Level Laundry
Elementary School
Estes Park
Middle School
Estes Park
High School
Estes Park
School District
Estes Park District
Sales Price
$875,000
Real Estate Tax
$3,839/yr
Zoning
O

Downloads

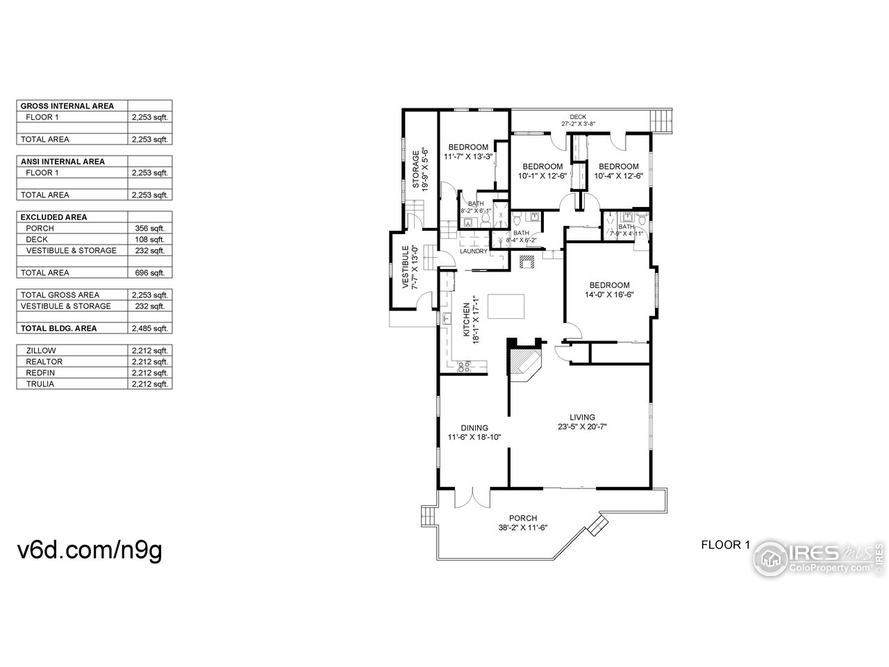
2175 US Highway 34

Schedule a Tour

I would love to help you see this beautiful home! As a full-service agent, I can help you tour. Please submit an offer, and answer questions about the buying process.

Thank you

for your interest in 2175 US Highway 34, Drake, CO 80515

2175 US Highway 34
Navigate

I'm Interested In

2175 US Highway 34

or
  • CallLiz Kozar

    License #FA100083197

    (970) 775-0025
  • Explore Other

    Featured Properties

    • 1267 Upper Venner Rd For Sale

      $2,150,000

      1267 Upper Venner Rd, Estes Park, CO 80517

      • 4 Beds
      • 3 Baths
      • 3,194 Sq.Ft.
    • 14142 N Saint Vrain Dr For Sale

      $1,495,000

      14142 N Saint Vrain Dr, Lyons, CO 80540

      • 3 Beds
      • 3 Baths
      • 3,193 Sq.Ft.
    • 2799 Kiowa Ct Lot 24 For Sale

      $310,000

      2799 Kiowa Ct Lot 24, Estes Park, CO 80517

    • 200 Riverside Dr Hallett-1 For Sale

      $269,500

      200 Riverside Dr Hallett-1, Estes Park, CO 80517

      • 1 Bed
      • 1 Bath
      • 660 Sq.Ft.
    • 950 Big Thompson Ave 1142 For Sale

      $239,000

      950 Big Thompson Ave 1142, Estes Park, CO 80517

      • 2 Beds
      • 1 Bath
      • 840 Sq.Ft.
    View All Properties

    Follow Me On Instagram